Het landgoed St. Gerlach


Het landgoed St. Gerlach naar een nieuwe toekomst

J.M. Keulers

"Van de samenwerking tussen hotel restaurant en appartementencomplex enerzijds en kerk, kapel, pelgrimsruimten en voorzieningen alsmede schatkamer en museum anderzijds bestaan hoge verwachtingen",  zo schrijft de heer U.F. Hylkema, lid van het bestuur van de "Stichting Behoud St. Gerlach" en voormalig directeur van de Rijksdienst voor de Monumentenzorg.
Hiermee wordt goed aangegeven wat er in het complex St. Gerlach gerealiseerd gaat worden, en welke functies de diverse onderdelen zullen gaan vervullen.

In willekeurige volgorde:

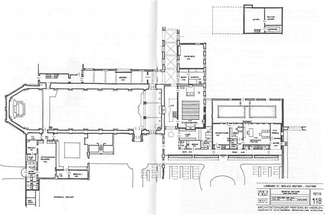
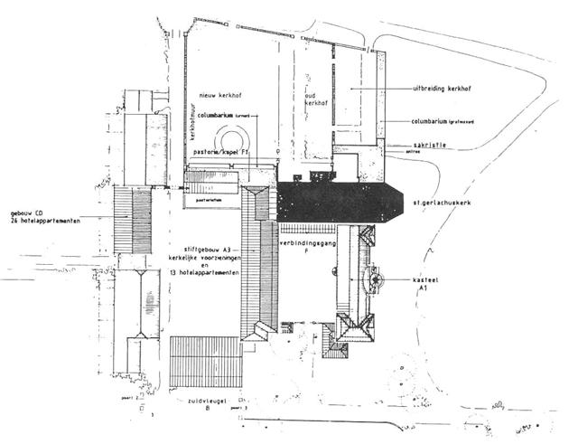
1. De horeca onderneming van Camille Oostwegel, waaronder valt een hotel van ca. 60 kamers in de Pachthof, plus een restaurant in het kasteel en andere voorzieningen in de zgn. zuidschuur (bij "Erens").

2. Het appartementencomplex te realiseren door de Vechtse Slag van de heer Maarten Cuppen deels op de begane grond en verdiepingen van het oude stiftgebouw (boerderij Erens) en in de nieuw op te bouwen schuren aan de westkant. Deze appartementen zullen dienen voor tijdelijk verblijf van mensen die enige tijd in het Geuldal willen verblijven.

3. De parochiële voorzieningen:
 - een informatieruimte voor bezoekers in de huidige sacristie
 - de ruimte tussen kerk en kasteel met z'n voortzetting in de gang ten zuiden van de kerk (dit vormt een deel van de oude kruisgang rond de voormalige binnenplaats)
 - verder de voortzetting van deze kruisgang in het oude stiftgebouw, waaraan een catecheseruimte aansluit plus de nieuwe sacristie

  - in de huidige open hoek tussen kerk en stiftvleugel, aansluitend aan de kerkmuur, komt een ruime gang waarin de trap wordt aangebracht die toegang geeft tot de verdieping (o.a. oksaal en schatkamer)
 - de daaraan aansluitende Gerlachuskapel, die dienst zal doen als dagkapel voor de parochie en tevens als stiltekapel
 - aansluitend volgt dan een klein winkeltje met souvenirs e.d. en de administratieruimte
 - en dan in westelijke richting de nieuwe pastorie.
 - op de verdieping van de gang naast de kerk staat de schatkamer gepland (denk aan de tunicella van St. Gerlach, aan het borstbeeld, aan oud zilveren vaatwerk uit de tijd van het stift e.d.).

4. Tenslotte zijn er nog de landerijen; hun bestemming is nog niet helemaal uitgekristalliseerd, maar iedereen zou het toejuichen als dit een natuurontwikkelingsgebied zou kunnen worden.

In het gehele plan zijn ook parkeerplaatsen voorzien; westelijk van de Pachthof een parkeerplaats ten behoeve van gasten voor hotel en appartementen; achter de boerderij van Broers een parkeerplaats voor tijdelijke bezoekers: kerkgangers of bezoekers van het complex c.q. wandelaars in het Geuldal.

Deze combinatie van functies ten behoeve van gasten, bezoekers, pelgrims en kerkgangers kan spannend worden, zowel voor het behoud en functioneren van het gehele landgoed alsook voor het dorp Houthem, dat hiermee een nieuw "hart" zal krijgen, maar vooral ook voor de parochiegemeenschap, waarvoor alle kerkelijke functies op een waardige wijze geconcentreerd worden rond de kerk zelf en die daardoor ook alle mogelijkheden krijgt om zichzelf te ontplooien.

landgoed tekening

landgoed tekening

 

landgoed tekening

- Landgoed St. Gerlach (ir. P.A.M. Mertens)  


Gepubliceerd in 't Sjtegelke, (1995) nr 3, p. 13-18


naar boven

© Heemkundevereniging Houthem-St. Gerlach

Geen menu? Klik hier!